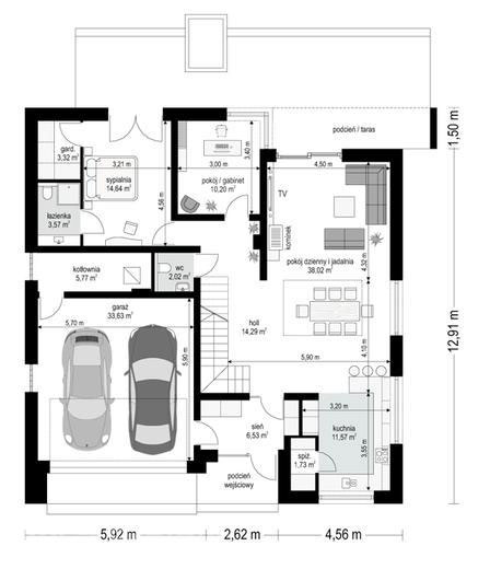
Butik Dubleks 219 Metrekare

Bu site, size daha iyi bir tarama deneyimi sunmak için çerezler kullanmaktadır. Bu web sitesinde gezinerek, çerez kullanımımızı kabul etmiş olursunuz.